Array ( [cat_id] => 43 [cat_name] => 智能配电设备 [unique_id] => zhinengpeidianshebei [parent_id] => 0 [url] => http://www./product/zhinengpeidianshebei ) 高压开关柜-GA黄金甲官方网站
电能质量治理 电力能源管理 智能配电设备 机电传动自控 智慧数字电力 品牌战略授权
高压开关柜

产品概述

KYN28系列高压开关柜主要应用于10KV电力系统中,用于发电、输电、配电、电能转换等环节中,主要起到通断、控制或保护等作用,主要组成部分包括高压断路器、高压隔离开关与接地开关、高压负荷开关、高压自动重合与分段器、高压操作机构、高压防爆配电装置等。这些组件共同工作,以实现对电力系统的有效控制和保护,不仅可以根据电网运行需要将一部分电力设备或线路投入或退出运行,还可以在电力设备或线路发生故障时将故障部分从电网中快速切除,从而保证电网中无故障部分的正常运行,根据结构类型,高压开关柜可分为铠装式、间隔式、箱式等,还有按断路器安装方式分的移开式和固定式,产品广泛应用于变电站、交通运输、工业、石油化工、煤矿开采、商业和公共设施等多种场合。

性能特点

结构设计:模块化设计允许根据具体需求灵活配置和扩展,结构紧凑,节省空间,便于安装在有限的空间内集成不同的功能单元;

高安全性:设备设计满足严格的安全标准,具备短路保护、过载保护、漏电保护等,通常配备有联锁机制,防止误操作;

高可靠性:使用高质量的材料和组件,确保设备在长期运行中的稳定性和可靠性,设计能够承受高电压和大电流的工作环境;

监测控制:配备先进的监测和控制设备,如智能控制器,用于实时监控系统状态。可集成远程监控和控制功能。

多功能性:集成多种功能,如计量、保护、控制和监测等,设计考虑电磁兼容性,减少对其他设备的干扰,便于与其他电力系统设备集成。

维护方便:结构设计便于维护和检修,减少维护时间和成本,易于访问的组件和模块化设计简化了更换和修理过程;

操作简便:配备手动或自动操作机构,便于电路的接通和断开,清晰的指示和标识,方便操作人员识别和操作;

防护等级:具有较高的防护等级,防止尘埃、水分和其他外部因素对设备造成损坏和破坏,适用于多种环境条件,包括不同的温度、湿度和海拔高度;

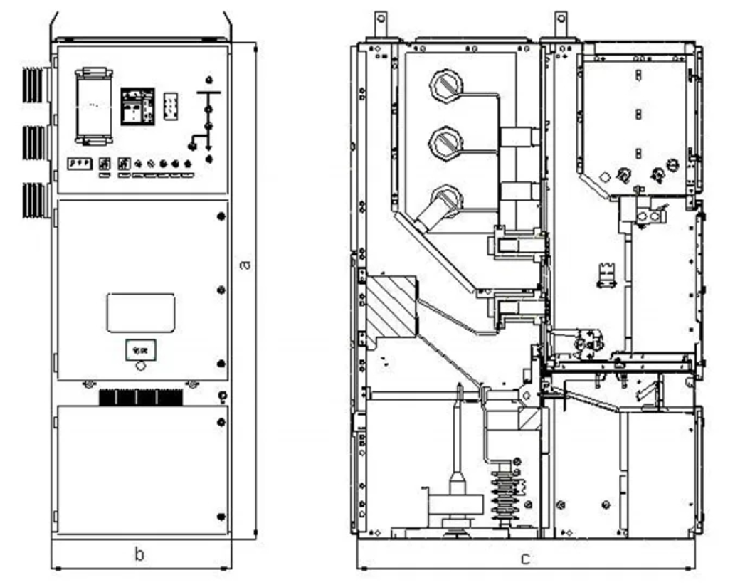
方案原理


1.二次仪表室;2.母线室;3.断路器手车室;4.电缆室

设计依据

GB156-93 标准电压

高压输变电设备的绝缘配合

GB1984-89 《交流高压断路器》

GB3906-91 《3-35KV交流金属封闭开关设备》

GB11022-89 《高压开关设备通用技术条件》

DL/T402-1999 《交流高压断路器订货技术条件》

DL/T402-1997 《户内交流高压开关柜订货技术条件》

DL/T593-1996 《高压开关设备的共用订货技术条件》


技术参数

额定电压

12kV

额定电流

3150A~630A

额定频率

50Hz

额定绝缘水平

1min工频耐受电压

42/48KV

雷电冲击耐受电压

75/85KV

主母线额定电流

630、1250、1600、2000、2500、3150A

分支母线额定电流

630、1250、1600、2000、2500、3150A

额定短时耐受电流(4S)

16、20、25、31.5、40、50kA

额定峰值耐受电流

40、50、63、80、100、125kA

防护等级

外壳为IP4X(最高可到IP43),隔离间,断路器室门打开时为IP2X


型号含义


外观结构



标准选型


高度B


2300(2200)(mm)

高度A

分支小母线额定电流达到1250A,热稳定电流40kA

800(mm)

分支小母线额定电流1600A以上

1000(mm)

高度C

电缆进出线

1500(mm)

架空进出线

1660(mm)

选型参考

高度a(mm)        2200
宽度b       (mm)
分支母线额定电流为1250A及以下,短路开断电流为31.5kA及以下         800/650
分支母线额定电流为1600A及以下,短路开断电流为40kA       800
分支母线而定电流为1600A及以上       1000
深度c(mm)          1350/1500


订货须知

电力系统图;

辅助电路电气原理图;

组合顺序图;

平面布置图;

计量单元;

外壳材质(镀镁铝锌板)

颜色(标准RAL7035)

使用环境(户内)

落地并序安装;

负载性质;

特殊要求注明;

©2024 版权所有 GA黄金甲官方网站